2024/04/18
和臻邸 0403震後結構鑑定
和臻邸 工程進度|台中市土木技師公會報告

4/3上午7時58分,台灣花蓮外海發生芮氏規模7.2地震,台中市最大震度4級,名傑營造動員全體工務同仁查驗工地狀況,均無受到影響,並主動要求第三公証單位 - 台中市土木技師公會現場會勘。
土木技師公會、張董、名傑主任技師及各級主管於和臻邸現場會勘完成。
公會技師說明鋼筋握裹已達混凝土終凝時間,現場會勘確認無受地震力造成鋼筋與混凝土握裹影響,可安排持續施工。
公會預計4/10進行現場鑽心試驗及鋼筋握裹試驗,並於4/16後提供更完整的鑑定資料,讓住戶更安心。
鑑定結論:
綜合鑑定結果,均顯示鋼筋和混凝土間應無因此次地震造成降低鋼筋和混凝土間握裏力的現象,可見混凝土品質亦應無受到影響,本次澆置的範圍無結構安全上的疑慮。
和臻邸 台中市土木技師公會鑑定報告

勘驗過程記錄
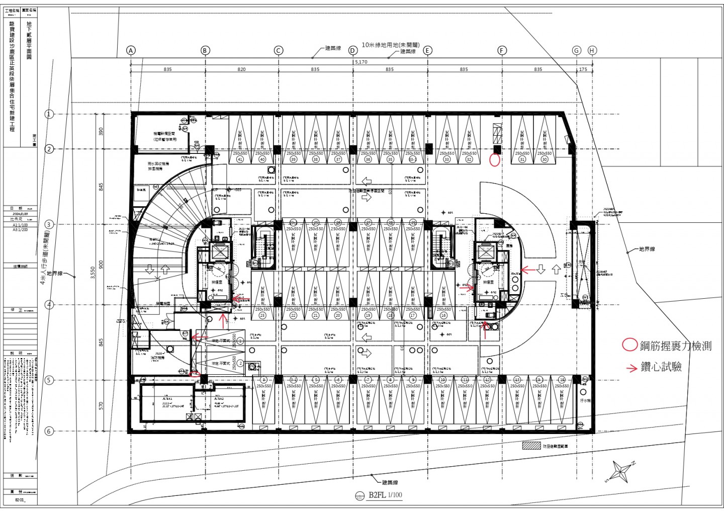
4/10 和臻邸『B1FL地震前七日澆置安全鑑定試驗』事宜:
1.柱筋握裹力試驗2處,每處探測出柱主筋後上下鑽2孔間隔15CM,上孔以EPOXY低壓(1000PSI)灌注持續10分鐘後,確認下孔無滲漏出EPOXY,握裹力試驗OK。
2.鑽心試驗6處,公會技師回覆五天後才能進行試驗,預計4/16後試驗後報告會儘速提供。
和臻邸 | 檢測方式說明

和臻邸 | 查驗位置圖


MENUCLOSE